IDEAL HOME FOR EVERY FAMILY
ABOUT THE UNIT
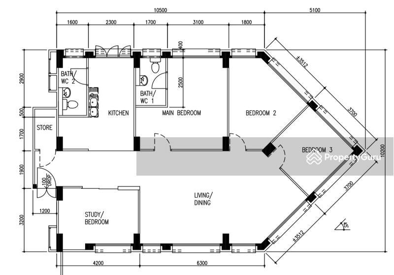
• Spacious 5RM flat with 4 bedrooms
• Unit is bright and windy
• Minimalistic in design
• Well maintained by owners
• No build in, in the living room
• 4 good size bedrooms
• Main door faces West
• Unblocked view with privacy
• Only Chinese ethnic group eligible
