IDEAL HOME FOR EVERY FAMILY
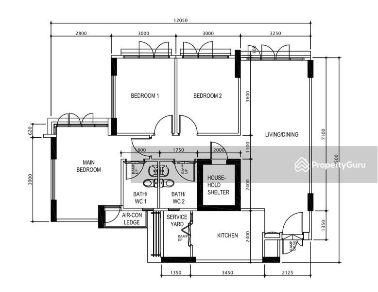
ABOUT THE UNIT
• Nicely renovated
• Minimalistic in design, flexible to furnish to your own taste
• High floor with unblocked view
• Unit is bright & breezy
• Well Maintained unit , move in ready!
• Top and bottom kitchen cabinets fitted
• 3 bedrooms all intact
• Carpark is link to blk lobby
• Main door facing SE
