IDEAL HOME FOR EVERY FAMILY
ABOUT THE UNIT
• High floor , garden facing
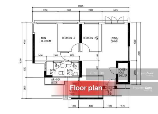
• A rare L – shape layout , able to do an open concept kitchen.
• Minimalistic design with minimal build ins , furnish to your own taste with minimal hacking
• Done up quality vinyl flooring in the whole unit
• Main door faces South
• Living room and all 3 bedrooms come with no build ins
• Point blk, 4 units per level
• Well maintained by owners
